Technische Werke Ludwigshafen
Büroflächen flexibel nutzen – durch Standardisierung der Büroräume und ihrer technischen Infrastruktur
Büroflächen flexibel nutzen – durch Standardisierung der Büroräume und ihrer technischen Infrastruktur
Technische Werke Ludwigshafen
Büroflächen flexibel nutzen – durch Standardisierung der Büroräume und ihrer technischen Infrastruktur
Büroflächen flexibel nutzen – durch Standardisierung der Büroräume und ihrer technischen Infrastruktur
© digitales bauen
Technische Werke Ludwigshafen
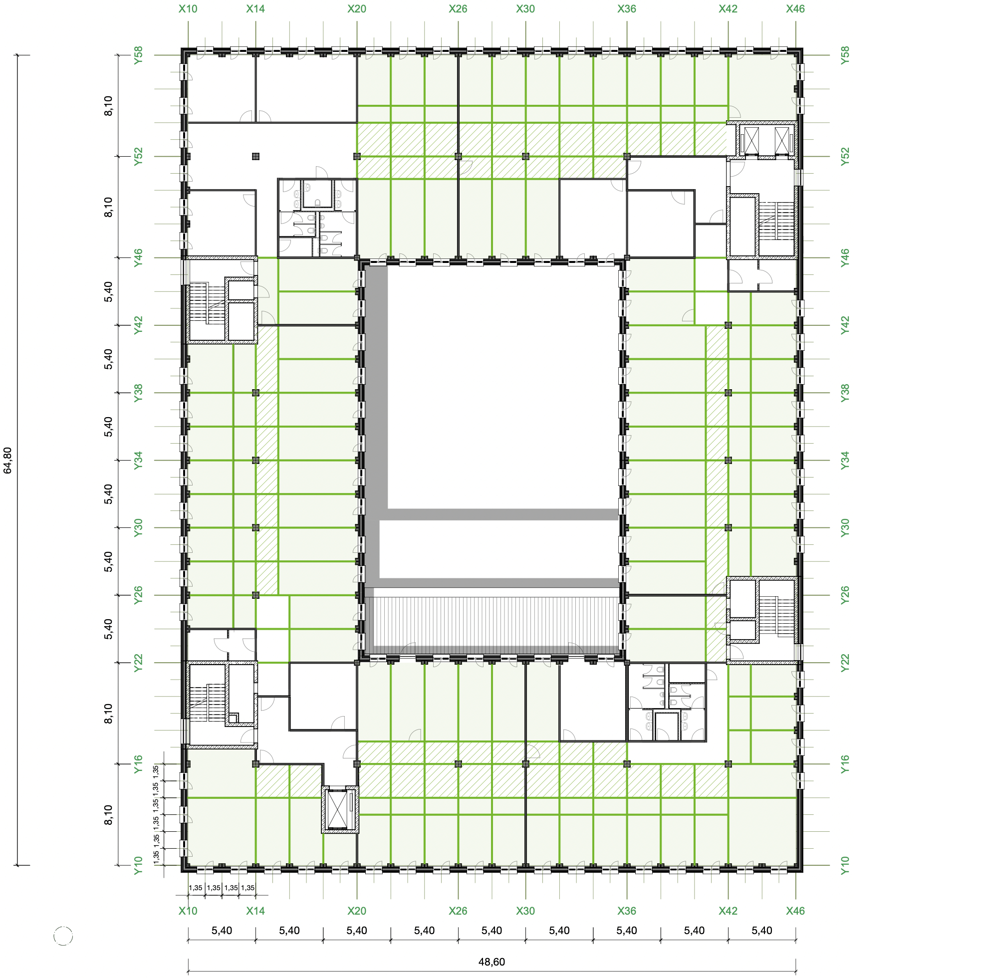
Das Projektkoordinatensystem als Basis für Modularisierung und Flexibilität.
Das Projektkoordinatensystem als Basis für Modularisierung und Flexibilität


Projektkoordinatensystem TWL


Potentielle Wandstellungen
Die Technischen Werke Ludwigshafen (TWL) planen einen Neubau „das T-Haus“ für ihre technischen Abteilungen und die Ausbildungswerkstatt auf dem Gelände Industriestr. 3 in Ludwigshafen. Der Neubau, ein viergeschossiges Atriumgebäude, wird als Werkstatt- und Bürogebäude errichtet. Im Untergeschoss sind eine Tiefgarage sowie Lager und Technikräume geplant.
Das Erdgeschoss wird für die Werkstätten und für die Ausbildung vorgesehen.
Im ersten Obergeschoss befinden sich die Kantine, mit einem direkten Zugang zu einer großen Terrasse, sowie die Gruppen- und Besprechungsräume und noch ein paar Büroabteilungen. Das 2. Obergeschoss ist ein reines Bürogeschoss, in dem die verschiedenen Abteilungen untergebracht sind. Im 3. OG ist noch die Technikzentrale verortet.
Die Bürogeschosse sind so gestaltet, dass sie auf Basis vordefinierter Module und Regeln an wechselnde Nutzungsanforderungen der unterschiedlichen Abteilungen einfach angepasst werden können. Die Nutzungsflexibilität wird durch eine konsequente Standardisierung der Büroräume und ihrer technischen Infrastruktur ermöglicht. Für zukünftige Änderungen und Umbauten sind die Abschottungen in der Decke für einen Standard Büroraum von 2,70m Breite bereits in großen Teilen vorgerüstet. Dies ist ebenso in der technischen Infrastruktur berücksichtigt.
Technikmodulplan Decke
Standardisierte technische Infrastruktur
Referenzieren statt kopieren: Bessere Performance im 3D-Modell
Technikmodulplan Decke
Referenzieren statt kopieren:
Bessere Performance im 3D-Modell
Standardisierte technische Infrastruktur




Integrierte Gebäudetechnik in der Holz-Hybrid Decke
Holz-Hybrid Decke
Integrierte Gebäudetechnik für flexible Nutzung der Büroflächen
Integrierte Gebäudetechnik für flexible Nutzung der Büroflächen
Leistungen digitales bauen
Modularisierung, Systemintegration, Architektur, Fassadengestaltung
(als Teil des Planungsteams von Drees & Sommer)
Projektdaten
Funktion
Ludwigshafen
Standort
Ludwigshafen
Bauherr
Auftraggeber/Architekt
BGF
15.560 m2
Anzahl Geschosse
4 + 2 Untergeschosse
Zeitraum
2023 – 2025
Architekturplanung
Gestaltung der Haupttreppe
Referenzieren statt kopieren: Bessere Performance im 3D-Modell
Architekturplanung
Referenzieren statt kopieren:
Bessere Performance im 3D-Modell
Gestaltung der Haupttreppe
Die vorgefertigten Holztafel-Fassadenelemente ermöglichen eine schnelle, präzise und gerüstfreie Montage.
Die vorgefertigten Holztafel-Fassadenelemente ermöglichen eine schnelle, präzise und gerüstfreie Montage.

Fassade aus vorgefertigten Holztafel-Elementen

Nord- und Ostfassade der Technischen Werke Ludwigshafen
digital planen,
bauen
und betreiben
digitales bauen
Augartenstraße 1
76137 Karlsruhe
+49 721 266756 10
info@digitales-bauen.de
© digitales bauen 2026
Impressum
Datenschutz