Bürohochhaus
ROCHE BAU 1 BASEL
© Roche Basel
digitales bauen integriert und modularisiert die Gebäudetechnik im höchsten Gebäude der Schweiz.

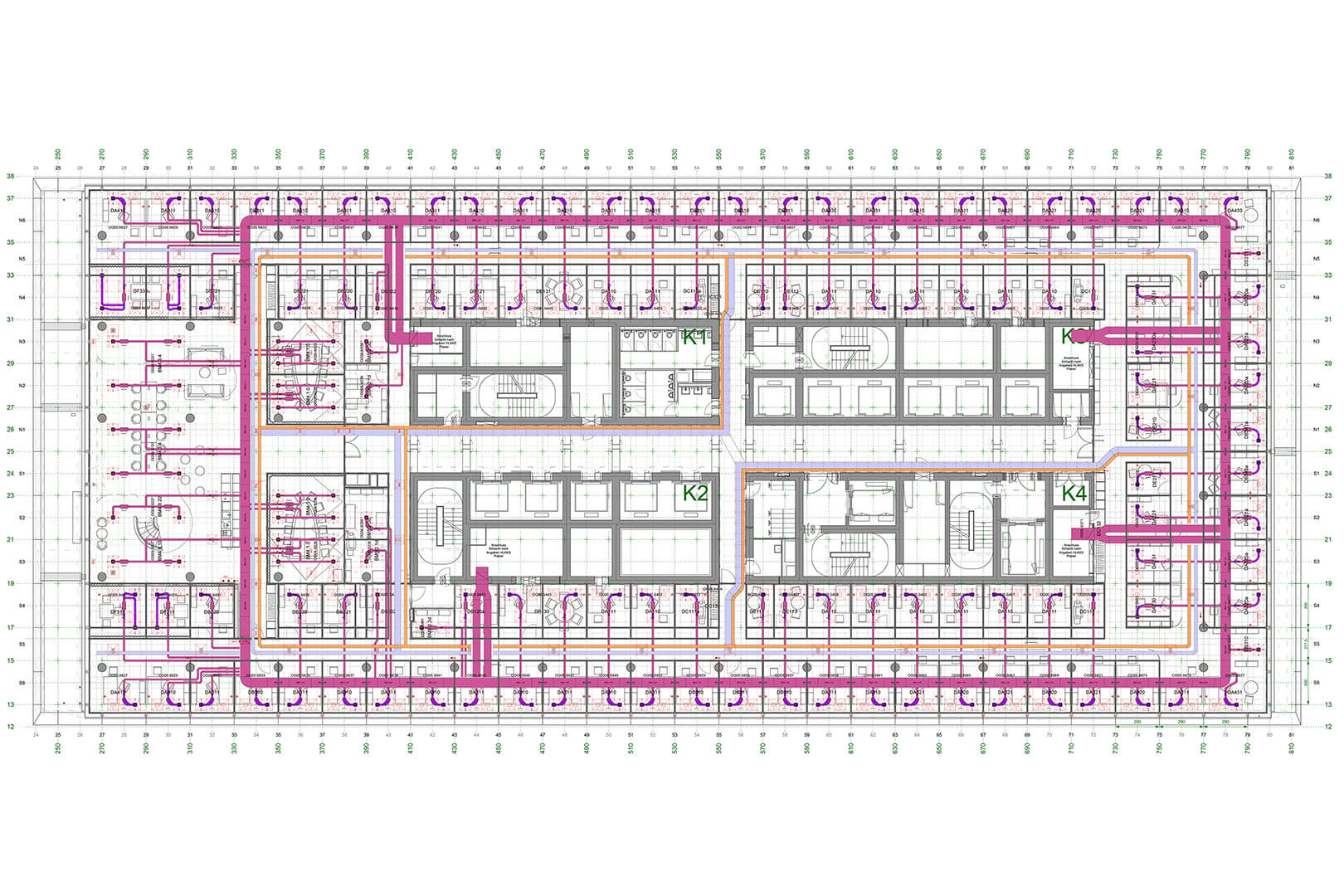
Integrationsplan Roche Bau 1
Leistungen
Modularisierung, Systemintegration, Industrielle Vorfertigung, Befestigungstechnik, Raumbuch
Projektdaten
Standort
Basel
Bauherr
F. Hoffmann-La Roche AG Basel
Architekt
Herzog & de Meuron Basel
BGF
76.000 qm
Kosten
550 Mio CHF
Geschosse
41
Zeitraum
2009 – 2015

Raummodulkatalog (Blatt 15 von 34)

Regeldetail Boden und Decke eines Kombibüros

Online Raumbuch
digital planen,
bauen
und betreiben
digitales bauen
Augartenstraße 1
76137 Karlsruhe
+49 721 266756 10
info@digitales-bauen.de
© digitales bauen 2026
Impressum
Datenschutz