Industrielles Bauen
CAD CAM MONTAGESCHIENEN, WAND- UND DECKENDURCHBRÜCHE
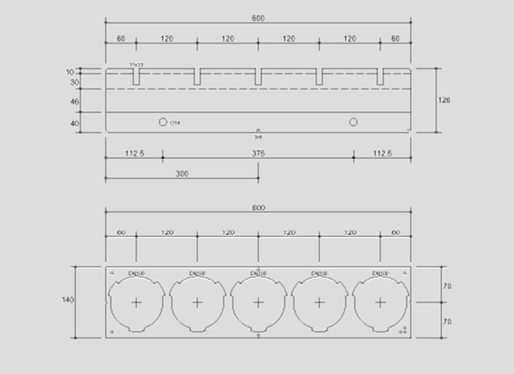
Montageschienen Boden im Projekt Fiducia Karlsruhe
CAD CAM Montageschienen.
Bauen wie geplant.

Montageergebnis stimmt zwingend mit der Planung überein
Wie kann eine kollisionsfrei abgestimmte und optimierte Trassenplanung auf der Baustelle wie gewünscht konfliktfrei und rationell umgesetzt werden?
Montageergebnis stimmt zwingend mit Planung überein
Für diese Anforderung hat digitales bauen ein einzigartiges Bauverfahren entwickelt, welches direkt aus der koordinierten Trassenplanung heraus mit Hilfe von CNC-Maschinen maßgeschneiderte Befestigungstraversen und Schalungskörper aus Blech herstellt. Diese Bauteile werden von einem Montagebetrieb in Zusammenarbeit mit einem Vermesser im Rohbau montiert. Die nachfolgenden Installationsbetriebe finden auf den Bauteilen alle Befestigungspunkte für die Montage ihrer Installationstrassen vor. Das Montageergebnis stimmt damit zwingend mit der Planung überein. Neben den positiven Effekten für die Bauabläufe generiert dieses Verfahren erhebliche Vorteile für den Nutzer und Betreiber. Alle Trassen und Wartungspunkte befinden sich exakt an den vorgesehenen und dokumentierten Stellen.
Exakte Umsetzung der Brandschutzvorschriften
Im Bereich der Decken- und Wanddurchbrüche garantieren die Schablonen die exakte Umsetzung der Brandschutzvorschriften, hier insbesondere die Abstände von Leitungen und das Verschließen der Öffnungen. Die Rohrhülsen werden in diesem Fall direkt mit den notwendigen Brandschutzmanschetten (z.B. Conlit-Schalen) ausgerüstet. Die Baustellen werden so um ein erhebliches Ausführungsrisiko entlastet.
Leistungen
Vermeidung von Konflikten, Einhaltung Brandschutzvorschriften, Bauen wie geplant

Montageschienen Deckendurchbruch

Montageschienen Wanddurchbruch

Montageschienen Boden

Kunden- und Projektverwaltung

Konfiguration der Bauteile im Internet

Einpassen des Bauteils in die Montageplanung

Die generierte Fertigungszeichnung

CNC Fertigung

Kommissionierung und Logistik

Vermessung

Einbau auf Filigrandecke

Verlorene Schalung

Installation und Ausführung Brandschutz

Koordinierter Wanddurchbruch

CAD CAM Montageschiene

Einbau entlang Fluchtlinie

Installation

Bauen wie geplant
digital planen,
bauen
und betreiben
digitales bauen
Augartenstraße 1
76137 Karlsruhe
+49 721 266756 10
info@digitales-bauen.de
© digitales bauen 2026
Impressum
Datenschutz