Industrielle Vorfertigung
BÜRGERHEIM VILLINGEN
Anlieferung der vorgefertigten Gebäudetechnik Module
Für einen beschleunigten Bauablauf wurden die technischen Installationen in vorgefertigten, modularen Einheiten zusammengefasst.



Logistik und Montage der Gebäudetechnik
Im Projekt wurde im Auftrag der ausführenden Haustechnikfirma die gesamte Installationsführung ab Zentrale gebündelt und in vorgefertigten modularen Installationseinheiten zusammengefasst. Die Detaillierung der Module umfasste dabei neben den Medien Wasser, Abwasser, Lüftung und Heizung, die Elektroinstallation mit Einsatz von Kabelbäumen und standardisierten Stecksystemen (Regelungstechnik für Lüftung, Notrufsysteme etc.) sowie die Verkleidung und Möblierung.
Die Anlieferung der vorgefertigten Module erfolgte im Takt der Baustelle.
Die Vorteile lagen u.a. in einer 100%igen Materialbereitstellung, klaren Handlungsanweisungen für die Montageteams, einem beschleunigten Bauablauf und keinen Zwischenlagern auf der Baustelle.

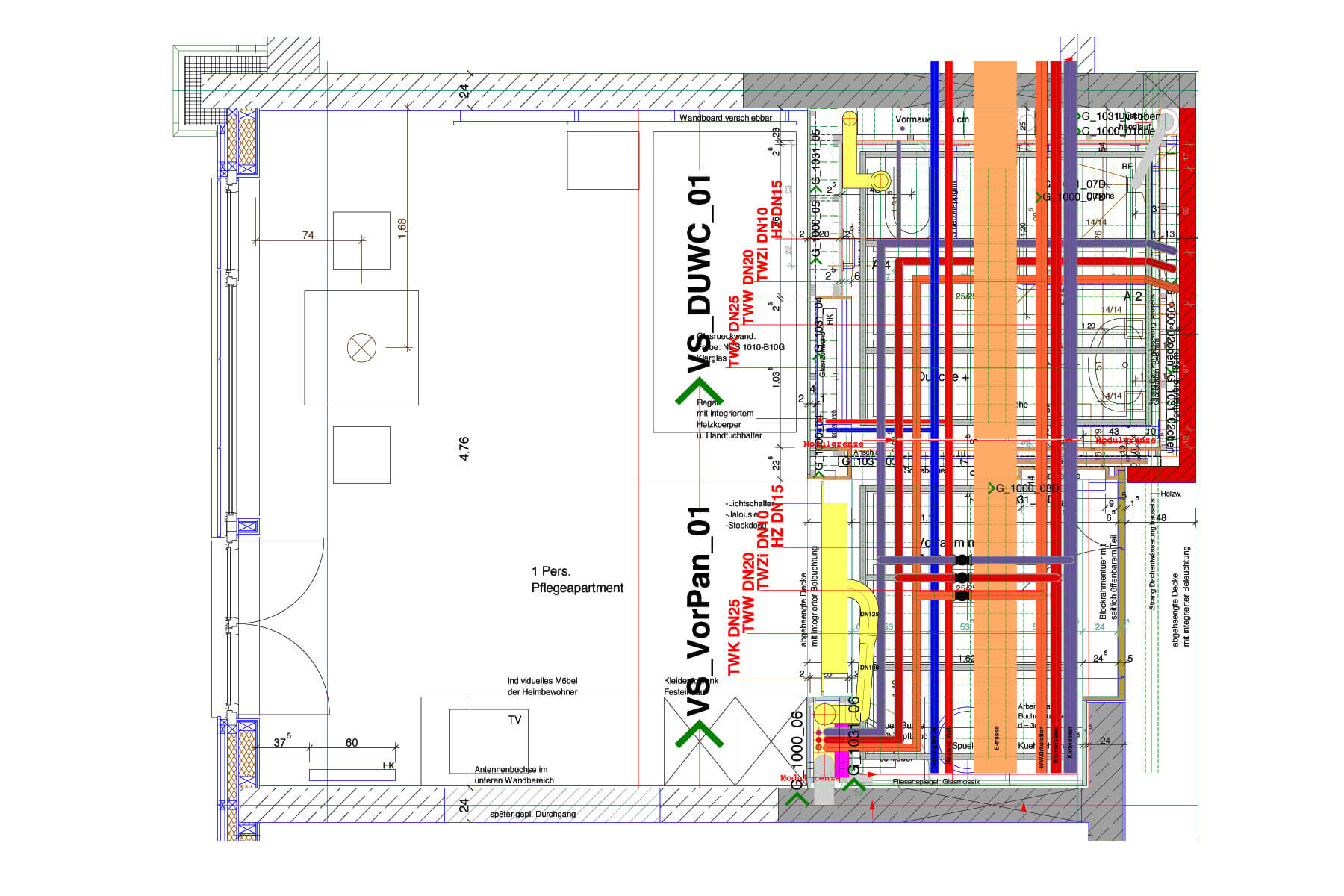
Appartment Schnitt Installationsführung Decke

Appartment Installationsführung Decke
Leistungen
Datenbankgestützte Montageplanung, Systemintegration, Modularisierung, Vorfertigung, Baulogistik
Projektdaten
Standort
Villingen-Schwenningen
Bauherr
LEG
Architekt
Schenker Villingen-Schwenningen
Auftraggeber
PKT-Systeme (Vorgefertigte Installationssysteme) Mittenwalde
Kosten
6 Mio €
Zeitraum
2003 – 2005

Qualitätskontrolle in der Vorfertigung

Qualitätskontrolle in der Vorfertigung

Elementierung Nasszelle: Boden, Wand, Decke, Schacht, Verkleidungen, Sanitärobjekte © FACT Böblingen

Datenhaltung modulare Baugruppen
digital planen,
bauen
und betreiben
digitales bauen
Augartenstraße 1
76137 Karlsruhe
+49 721 266756 10
info@digitales-bauen.de
© digitales bauen 2026
Impressum
Datenschutz